❄️ LAST MINUTE : 40% de remise en réservant à la dernière minute ❄️
+33 (0)6 81 73 44 94
Réserver
Chalets Appartements Résidences
Connexion
Inscription
Contact
Réserver
Chalets Appartements Résidences
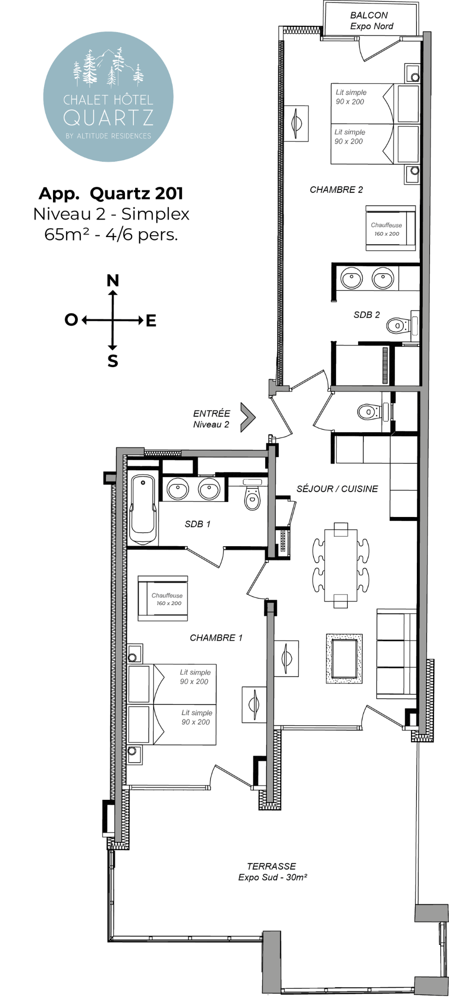
SIMPLEX - NIVEAU 2

Quartz 201, Tignes

Galerie Photos
SIMPLEX - NIVEAU 2

Quartz 201, Tignes

6 Personnes
2 chambres
65,00
EXPOSITION SUD EXPOSITION SUD
TERRASSE TERRASSE
ÉTAGE 2 ÉTAGE 2

Le Chalet Hôtel Quartz bénéficie d'un emplacement idéal au cœur de Tignes Val Claret, à proximité de nombreux commerces et sur le front de neige - paré à chausser les skis ! Pensé pour accueillir de 4 à 6 personnes, l'appartement dispose de deux chambres avec lits simples et d'un canapé dans le séjour. Une belle pièce de vie avec une vue sur La Grande Motte, vous offrira vos plus beaux souvenirs de vacances. L'appartement bénéficie d'équipements haut de gamme, d'un service hôtelier attentionné, de matériaux de qualité et d'un design soigné pour une expérience de vacances au ski 100% montagne. Soyez les premiers à découvrir le nouvel appart'hôtel emblématique de Tignes - Ouverture en novembre 2024 ! *Attention, les photos sont non-contractuelles

Plan de l'appartement
notre gamme
Titre gamme

Texte administrable. Nam iaculis libero lacus, in pulvinar nulla ultrices vitae. Donec quis lacus elementum, suscipit eros nec, feugiat nibh. Nunc fringilla est vel nunc rutrum pulvinar. Suspendisse gravida gravida scelerisque.

en savoir plus
les essentiels
ESPACE BIEN-ÊTRE PROCHE DES COMMERCES SKI AUX PIEDS EXPOSITION SUD CASIER A SKI LINGE DE LIT INCLUS LINGERIE GRATUITE TERRASSE VUE PISTE WIFI INCLUS ÉTAGE 2
services inclus
service service service service service service
services à la carte
service service service service service service
l'appartement
équipements
Appareil à fondue Appareil à fondue
Appareil à raclette Appareil à raclette
Aspirateur Aspirateur
Barre de son SONOS Barre de son SONOS
Smart TV Smart TV
Serviettes de bain Serviettes de bain
Sèche-cheveux dans chaque salle de bain Sèche-cheveux dans chaque salle de bain
Casier à ski Casier à ski
Blender Blender
Cave à vins Cave à vins
Cafetière Nespresso (capsules originale - Non fournies) Cafetière Nespresso (capsules originale - Non fournies)
Plaque à induction Plaque à induction
Lave vaisselle Lave vaisselle
Cafetière à filtre Cafetière à filtre
Four à chaleur tournante Four à chaleur tournante
Kit bébé : lit parapluie (hors draps), chaise haute et vaisselle bébé Kit bébé : lit parapluie (hors draps), chaise haute et vaisselle bébé
Kit hygiène : savon, gel douche et shampoing Kit hygiène : savon, gel douche et shampoing
Four micro-onde Four micro-onde
Terrasse Terrasse
Voir tous les équipements
Infos pratiques
Notre équipe de réservation est joignable au +33 (0)6 81 73 44 94 du lundi au samedi de 8h à 17h ou à contact@altituderesidences.com
check-in 17:00
check-out 09:00
Pas de place de parking inclue - parking le plus proche : parking « Les Tufs » (à réserver avec Indigo)
Le ménage de fin de séjour est obligatoire et inclus automatiquement à votre réservation (le prix s'ajoute au moment de la réservation)
Les draps et serviettes sont fournis et les lits sont faits à votre arrivée
Les animaux de compagnie sont acceptés avec un supplément de 100€ par animal et par séjour
Une bagagerie est disponible gratuitement pour vous permettre d'arriver plus tôt ou partir plus tard
1 casier à skis chauffant est inclus par appartement et accessible librement avec votre carte d'accès
Lingerie accessible librement et gratuitement avec machine à laver, sèche-linge et fer à repasser
L'espace bien-être - jacuzzi, sauna et hammam - est en libre accès aux horaires d'ouverture (accessible à partir de 16 ans)
voir toutes les infos

AJOUTER LA POSSIBILITE DANS LE BO DE LIER UNE FAQ CRéée DANS LE MODULE

Aux alentours
à proximité
Résidences
SIMPLEX - NIVEAU 2 Quartz 201, Tignes À partir de 310€ par nuit voir les disponibilités
Plan de l'appartement

Notre équipe est joignable au +33 (0)6 81 73 44 94 du lundi au samedi de 8h à 17h

Illustration résidence
Préparer votre séjour

besoin d'aide ?

Notre équipe est joignable au +33 (0)6 81 73 44 94 du lundi au samedi de 8h à 17h ou par e-mail à quartz@altituderesidences.com - La réception est joignable au +33 (0)6 86 05 84 30 aux horaires d'ouverture de la résidence.

Le Chalet Hôtel Quartz, votre résidence d'exception, disponible à partir de 3 nuitées ! Nous contacter
suivez-nous

prenez de l'altitude

@altitude_residences